-
Hannah Webbe – Building Regs for Internal Layout Conversion – Melton Mowbray, Leicester – Review

Hannah Webbe left us a review on Google & CheckaTrade: “Barnaby and the team at The Design Social were great. They completed a comprehensive house survey and worked with our builder to install a supporting beam in our sagging kitchen ceiling. We are very happy and would have no hesitation recommending their services to friends…
-
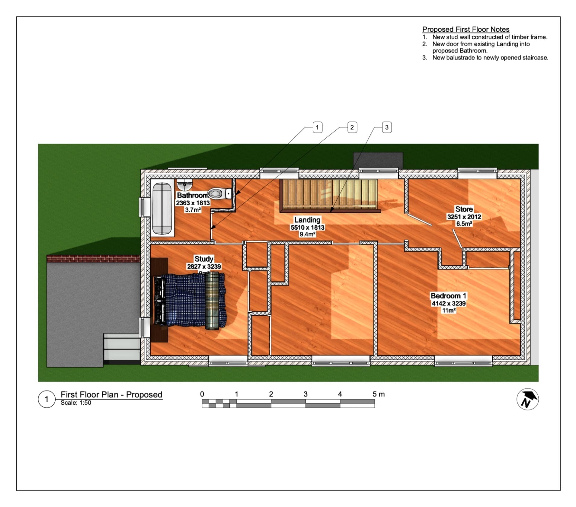
Hannah Webbe – Building Regs for Internal Layout Conversion – Melton Mowbray, Leicester

When Hannah Webbe approached us with their project, we knew immediately it was an important job that would need fixing as soon as possible. They had recently purchased an older property that had previously had an extension added onto the side elevation, however the new section was not fully supported with steelwork and the ceiling…
-
John Thompson – Rear Extension & Conservatory Conversion – Barwell – Review

John Thompson has left us a review of Google, CheckaTrade and Yell. “The Design Social provided a professional and friendly service which obtained planning approval for a rear two storey extension.” To learn more about this project, please click here to read our full post describing our process.
-
John Thompson – Planning Application & Building Regulations for Rear Extension – Barwell

John Thompson got in contact with us with plans for a large extension to his domestic property. This would have proven to be quite an involved project, requiring many different aspects, such as a full-width ground floor extension, a half-width first floor extension, a conservatory conversion as well as the installation of several solar panels,…
-
Vipul Patel – Modelling of 3D Visualisation for Internal Loft Space – Review

Vipul Patel has left us a review on Google for the work we did modelling and rendering a proposed loft space layout for them. “Highly recommend Design Social. They helped us convert some architects drawings into 3D models, walked us through them and even bought new ideas to the design ( which we are taking…
-
Peter Dean – Rear Extension – Bagworth, Coalville – Review

Peter Dean left us a review on Google, CheckaTrade and Yell and had this to say: “Barnaby and his team were great. As well taking our ideas for our kitchen and sitting room extension from a sketch to a completed design, he also advised on and undertook the requirements for planning, building control and a…
-
Peter Dean – Rear Extension – Bagworth, Coalville

Peter Dean was looking to build a rear extension to his property and was recommended The Design Social to help out with the planning and regulations side of the work. We were happy to work on this project and after an initial client meeting, we carried out a survey on the existing structure of his…
-
Risha Babu – Planning Application & Building Regs for Rear Extension – Leicester – Review

Risha Babu has left us a review on Google. “It was an absolute pleasure working with Barnaby and his team at The Design Social. He went above and beyond on our project, from understanding our vision to offering creative solutions in ways we hadn’t considered. The detailed drawings were very impressive and support was provided…
-
Artem Dvoriankin – Planning Approval & Building Regs for New Outbuilding – Wolverhampton – Review

Artem has left us a review on Google & CheckaTrade. “Great service! Barnaby was doing planning and building regs for our outbuilding. All done very well with approvals received. Recommend for your project!” If you would like to learn more about this project and what we did, then please click here to learn more.
-
Artem Dvoriankin – Planning Approval & Building Regs for New Annexe – Wolverhampton

Artem Dvoriankin was looking to start a project to gain a little more space on his property, in the form of a small, separate building in their rear garden. To seek proper approval for this space, they approached us here at The Design Social in order to get both planning and building regulations applications fully…
-
Steph Davies – Planning Application & Building Regs for Rear Extension – Barwell, Leicestershire – As Built

Steph Davies has finished the construction of the rear extension project that we helped out with and has been kind enough to send us As Built pictures of the completed work. Check those images out down below or click here to read a more in-depth look at the project itself.
-
Steph Davies – Planning Application & Building Regs for Rear Extension – Barwell, Leicestershire

Steph Davies called on us, looking for architectural work to be done for a rear extension project she was planning. We were happy to assist with this, working alongside their plans as we surveyed the area, then used that information to create a 3D model of both the existing site and the proposed works. After…
-
Tom Jeavons – Rear & Side Wrap-Around Extension – Bridgnorth, Wolverhampton

Tom Jeavons approached us through CheckaTrade, looking to get approval for a large extension project building off the back and side of his existing property. We happily took on this project, carrying out an on-site survey, designing and creating a 3D model layout for the proposed look of the project, then liaising with the local…
-
Andy Stevens – Planning Application for Wraparound Extension – Atherstone, Warwickshire – Review

Andy Stevens left us a review on Google. “Barnaby and the team have made the whole process of our extension so easy. The drawings and advice for the planning application are top drawer. Highly recommend The Design Social.” If you would like to learn more about this project, click here to look at our post.
-
Andy Stevens – Garage Conversion & Wraparound Extension – Atherstone, Warwickshire

Andy Stevens found us through CheckaTrade, looking to get approval for a large extension project on the rear and side of his property as his mother was coming to live with him and needed some more space. We were obviously happy to help out with this and started right away. To do this, carried out…
-
Emily Ling – Conversion of Existing Garage & Side Extension – Broughton Astley, Leicestershire – Update

After the work we carried out for Emily Ling’s conversion project, the client has since carried out the full construction of it and has even been kind enough to send us pictures of the finished work, which you can check out below! Alternatively, click here to see the clients review of our services, or click…
-
Nigel Bailey – Building Control & Regulations Drawings – Bromsgrove, Worcestershire – Review

Nigel Bailey has left us a review on Google. “I recently used the services of ‘The Design Social’ for a downstairs WC project in a home I will be moving in to shortly. I had a quick response to my enquiry and arranged a meeting at my new house with Barnaby. The meeting took place,…
-
Tristham Richards – Planning Application for Wrap-around & First Floor Extension – Blaby, Leicestershire – Review

Tristram left us a review on Google: “Very good and professional service. Really happy with all the way that has been carried out and would recommend.” To learn more about this project, click here to read our project post.
-
Tristham Richards – Planning Application for Wrap-around & First Floor Extension – Blaby, Leicestershire

Tristham approached us here at The Design Social to help him get approval for a sizeable extension project that would involve a two storey side extension as well as a single storey rear extension. We were happy to undertake the work involved, carrying out an on-site survey, then using that data to create and fully…
-
Sue Roberts – Design of New Cattery – Desborough, Kettering – Update

We helped Sue Roberts design and get approval for a brand new cattery and since our part was done, the construction of the project has been completed! Check the pictures out below, or click here to read her review of the project.














